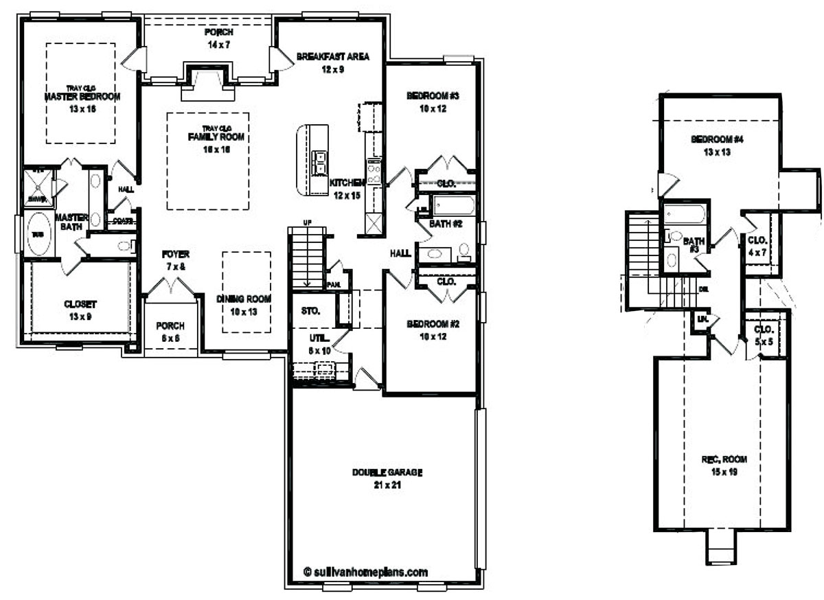
Beautiful 4 bedroom, 3 bath home with a large bonus room. Open concept with great room, dining room, and kitchen in same area. Several kitchen configurations are available depending on your appliance needs. Master suite changes with the version you select. One will have a walk through shower and 2 walk in closets while the other has a walk in shower with one large walk in closet. Split to the other side of the home are 2 bedrooms, full bath, and separate utility room. Upstairs is a large bedroom with walk in closet, large bonus room, full bath, and walk in attic space. Available in different elevations and versions.